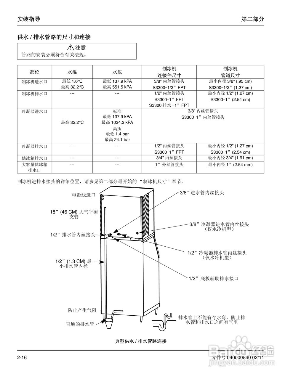
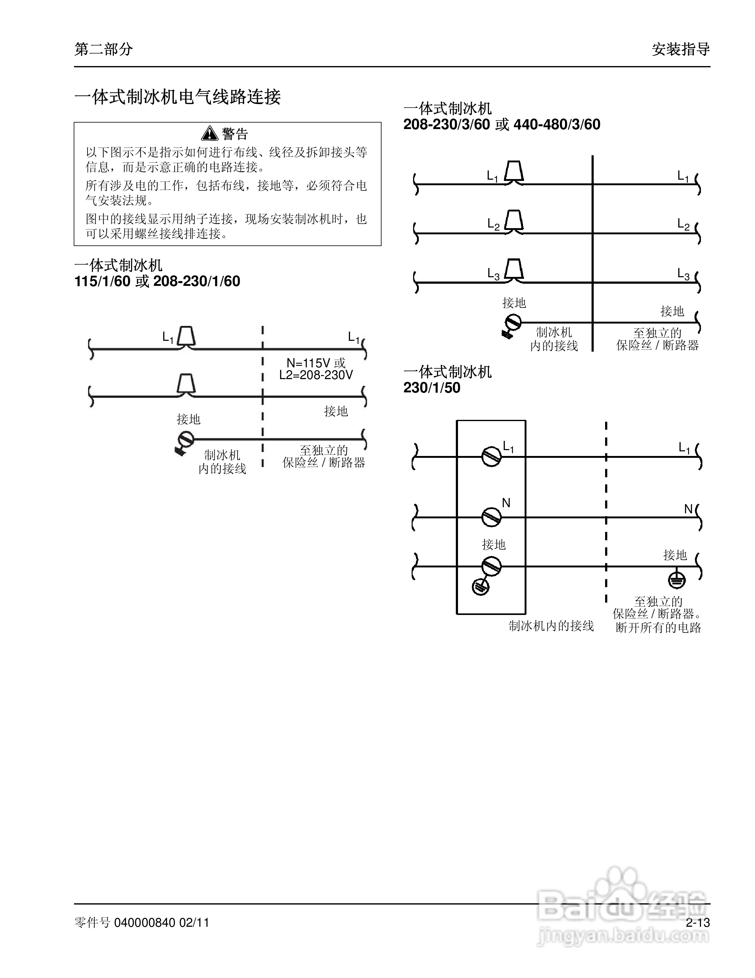
Manitowoc万利多SD1002A制冰机说明书:[3]

 时间:2026-02-14 00:38:11

Manitowoc万利多SD1002A制冰机说明书:[3]

Manitowoc万利多SD1002A制冰机说明书:[3]

Manitowoc万利多SD1002A制冰机说明书:[3]

Manitowoc万利多SD1002A制冰机说明书:[3]

/>

Manitowoc万利多SD1002A制冰机说明书:[3]

Manitowoc万利多SD1002A制冰机说明书:[3]

Manitowoc万利多SD1002A制冰机说明书:[3]

Manitowoc万利多SD1002A制冰机说明书:[3]

Manitowoc万利多SD1002A制冰机说明书:[3]

(共篇)上一篇:|下一篇:
  • Manitowoc万利多SD1002A制冰机说明书:[1]
  • Manitowoc万利多SD1002A制冰机说明书:[5]
  • Manitowoc万利多SD1692N制冰机说明书:[3]
  • Manitowoc万利多SD1802A制冰机说明书:[3]
  • 制冰机制冰慢怎么调节
  • 热门搜索
    板栗怎么保存 轮滑鞋怎么选 狗图片大全大图 僵尸电影大全 红旗h9图片大全 多人做人爱视频图片大全 团队名字大全 群头衔名称大全霸气 北京语言大学怎么样 红姐图库免费大全