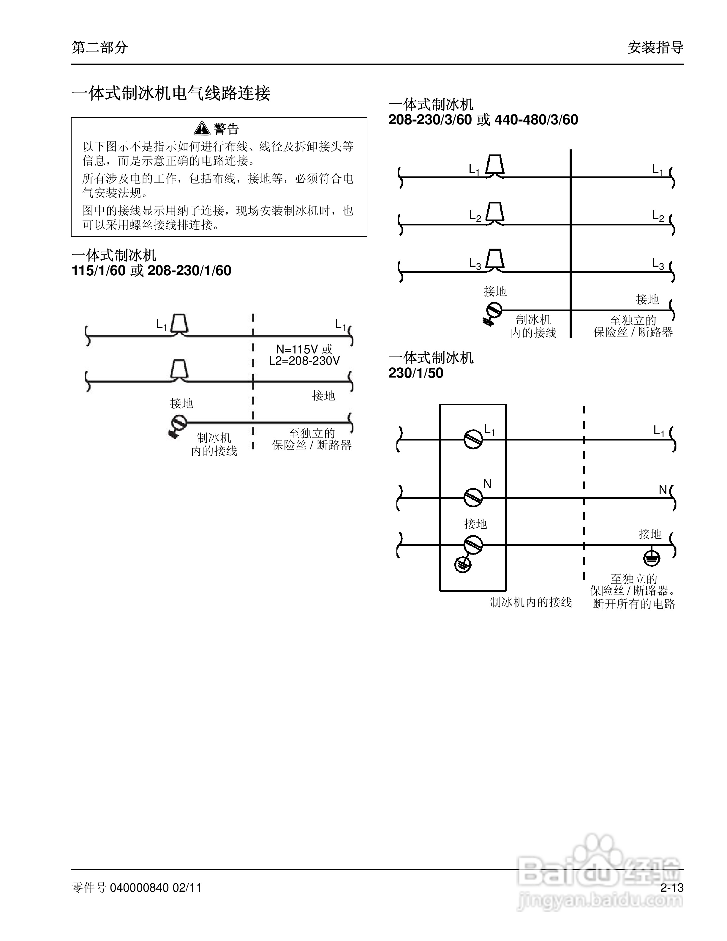
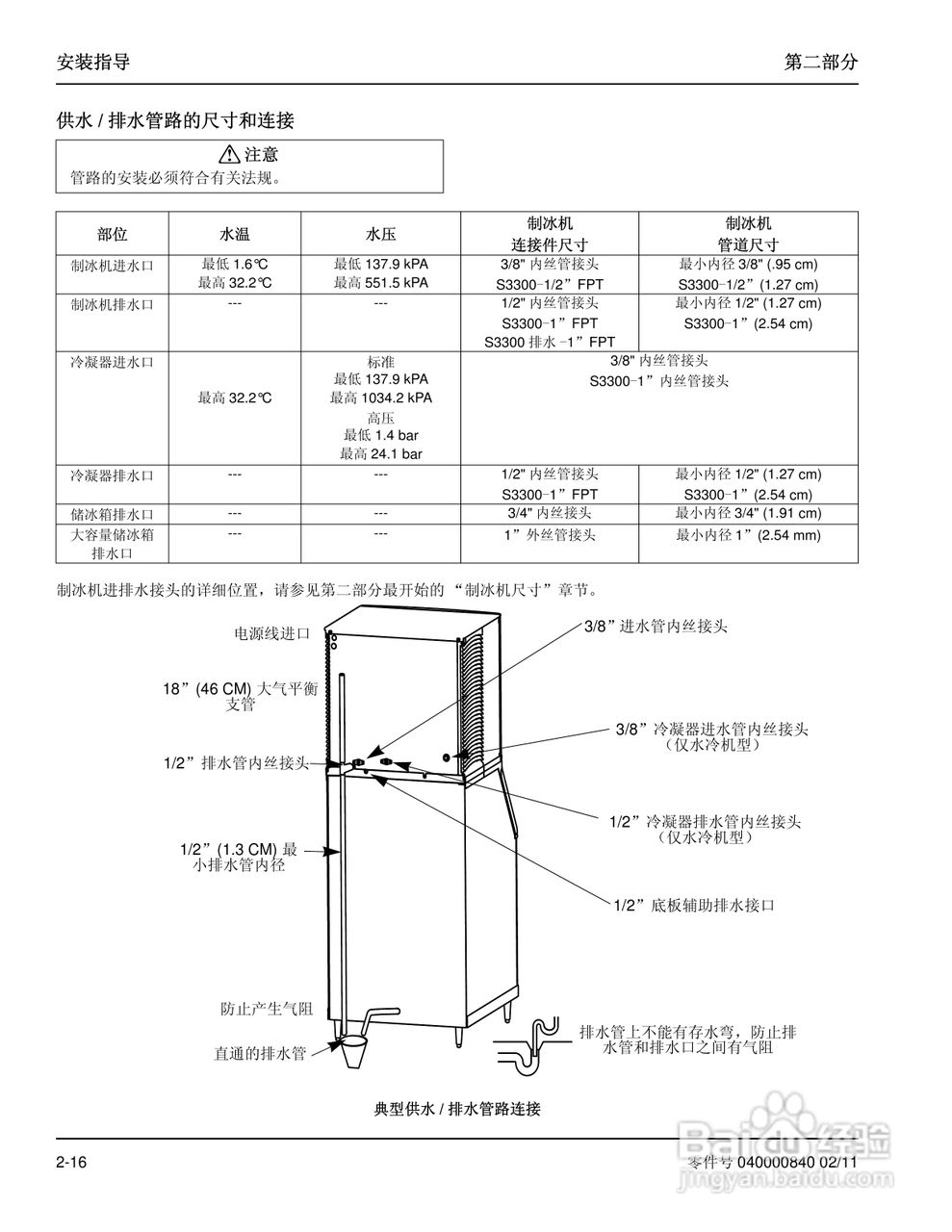
Manitowoc万利多SD1692N制冰机说明书:[3]

 时间:2026-02-14 20:12:12

Manitowoc万利多SD1692N制冰机说明书:[3]

Manitowoc万利多SD1692N制冰机说明书:[3]

Manitowoc万利多SD1692N制冰机说明书:[3]

Manitowoc万利多SD1692N制冰机说明书:[3]

/>

Manitowoc万利多SD1692N制冰机说明书:[3]

Manitowoc万利多SD1692N制冰机说明书:[3]

Manitowoc万利多SD1692N制冰机说明书:[3]

Manitowoc万利多SD1692N制冰机说明书:[3]

Manitowoc万利多SD1692N制冰机说明书:[3]

(共篇)上一篇:|下一篇:
  • Manitowoc万利多SD1692N制冰机说明书:[6]
  • Manitowoc万利多SD1692N制冰机说明书:[7]
  • Manitowoc万利多SD1002A制冰机说明书:[3]
  • Manitowoc万利多SD1602A制冰机说明书:[3]
  • Manitowoc万利多SD1802A制冰机说明书:[3]
  • 热门搜索
    净利润怎么算 小米手环怎么充电 分手怎么复合 男人肾虚怎么办 被马蜂蛰了怎么处理 怎么煮玉米 成人高考怎么报名 小鲫鱼怎么做好吃 智齿疼怎么办 银戒指变黑怎么办